文字を標準サイズに
文字を大きく
文字を特大サイズに
花巻市起業化支援センター
センターについて
施設案内
入居企業紹介
入居案内
入居状況
測定器・試験機
貸工場棟
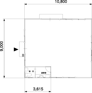
貸工場棟タイプA(97m²)
※画像クリックで拡大表示します
貸工場棟タイプB(162m²)
※画像クリックで拡大表示します
貸工場棟タイプC(315m²)
※画像クリックで拡大表示します
施設案内
概要
センターハウス・貸研究室
貸工場棟
花巻市起業化支援センター
〒025-0312
岩手県花巻市 二枚橋5-6-3
TEL:0198-26-5430
FAX:0198-26-1033
アクセス
お問い合わせ
関連サイト
ページトップに戻る